Mount Kaputar Amenities
Location: Mount Kaputar National Park
Completed: 1977
Design Architects: Bruce Eeles for National Parks and Wildlife Service
Building Type: Public - Amenities
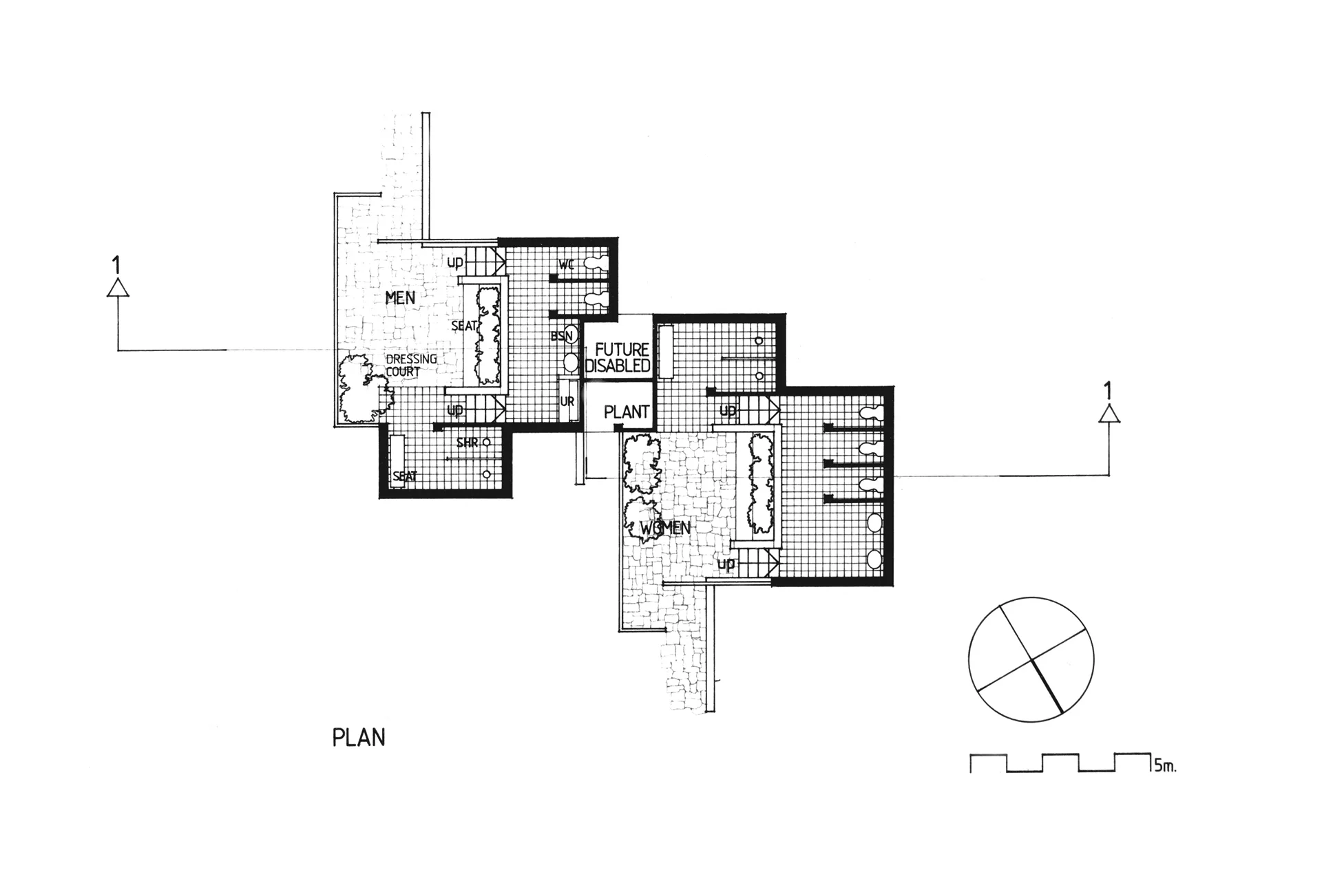
This building is located near the entrance road to the camping area known as "Bark Hut". It is designed to be as open as possible with all functional areas planned around two sunny, landscaped courtyards. The Building is constructed of local materials (Cypress Pine + Gunnedah bricks) which blend effortlessly into the natural setting.
